Highfields, West Byfleet
If you have a comment, query or complaint about any aspect of the service that Pegasus Homes provides, we very much want to hear from you.
For information regarding our communities, please complete the submit an enquiry and a member of our sales team will be in touch.
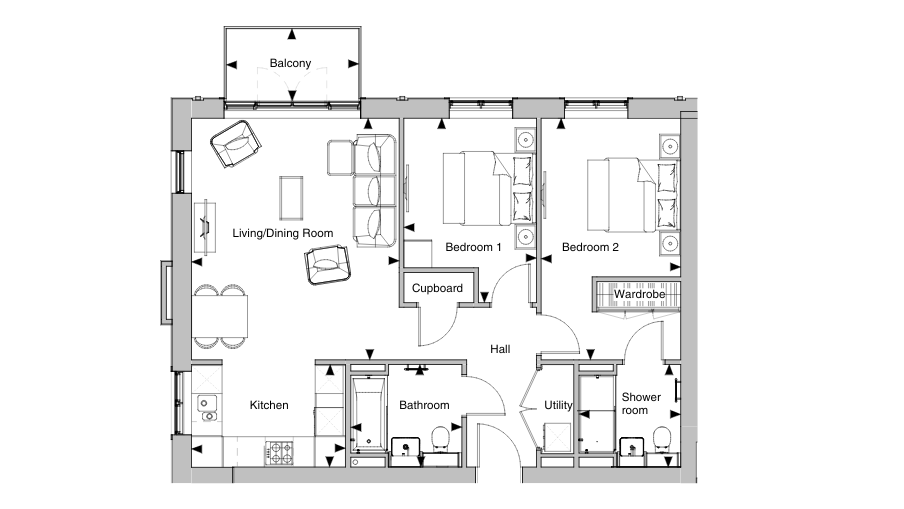
Apartment 8 is a spacious two-bedroom home spanning over 857 sq ft. It features an open-plan living area, built-in wardrobe and a private balcony.
*Floor plans and measures may vary and may be subject to change. Images for illustration purposes only.
Meet a neighbour for a companionable cup of tea, enjoy an impromptu glass of wine after an evening stroll, or take the Sunday papers and make an afternoon of it. Our elegant lounges are an extension of your living and socialising space. When you’re hosting a get-together with friends or family, we’re always delighted to accommodate your plans.
Our classic, contemporary landscaping is carefully detailed and thoughtfully planted, to look welcoming all year round. Smaller courtyard gardens and roof terraces are particularly important for our city centre locations, so we take care to make the very most of every square foot.
Your safety and security is our team’s main focus, so every member of our team has a knack for making others feel looked-after and understood. Practical issues, a social event to plan, or just for a friendly chat or word of advice: they’re there to support you, in any way they can.
Pursue a long-held passion, or discover something new. Express yourself, learn a new skill or share your own talents with others, whether that’s painting, photography, craft, or feats of technical wizardry. We love to host guest experts and enthusiasts too. Every day is a school day, as they say!
Luxuriously furnished, with an ensuite shower room, the guest suite is the perfect solution when friends or family have travelled from a distance and you want to make sure they enjoy their visit to the fullest. Think of it as your own very well-appointed spare room. It’s ideal for overnight stays, or even longer, as you wish.
Want to discuss any of our homes?
Or call 01932 911 092
Highfields, West Byfleet
Highfields, West Byfleet
Highfields, West Byfleet
Highfields, West Byfleet
Highfields, West Byfleet
Highfields, West Byfleet