Wooburn Bales
If you have a comment, query or complaint about any aspect of the service that Pegasus Homes provides, we very much want to hear from you.
For information regarding our communities, please complete the submit an enquiry and a member of our sales team will be in touch.
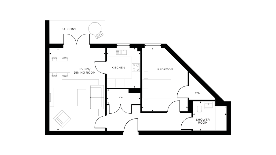
Apartment 38 is a modern one bedroom home located on the second floor currently available in our Wooburn Bales community.
*Floor plans and measures may vary and may be subject to change. Images are for illustration purposes only
Treat this as an extension of your living and socialising space: where you’ll pop along for a coffee and a chat with a neighbour, an impromptu glass of wine after an evening stroll, or maybe you’ll take a good novel and settle in for the afternoon. When you want to host a get-together with friends or family, the lounge can always accommodate your plans.
Imaginatively planted, so it looks vibrant and inviting all year round, the courtyard garden is the natural place to sit in fine weather with a neighbour or visiting friends and enjoy some fresh air, fine views and great conversation.
The community’s wellbeing is the on-site team’s whole focus. They’re there to sort out day-to-day practicalities, so you can concentrate on more leisurely pursuits. If you have a social event to plan, need a word of advice or want a recommendation for a day out or a venue for a family celebration, they’re delighted to help.
When friends or family have travelled to see you, why not take advantage of our guest suite. With its elegant furnishings and ensuite bathroom, it gives them their own space to enjoy their visit to the fullest, or to use as a jumping-off point for exploring the beauties of the local area.
You’re part of a community within a community: Wooburn is a traditional English village, sociably arranged around a village green, so it’s a great place to meet and make new friends, via your hobbies and interests or by getting involved in local events.
Want to discuss any of our homes?
Or call 01628918050